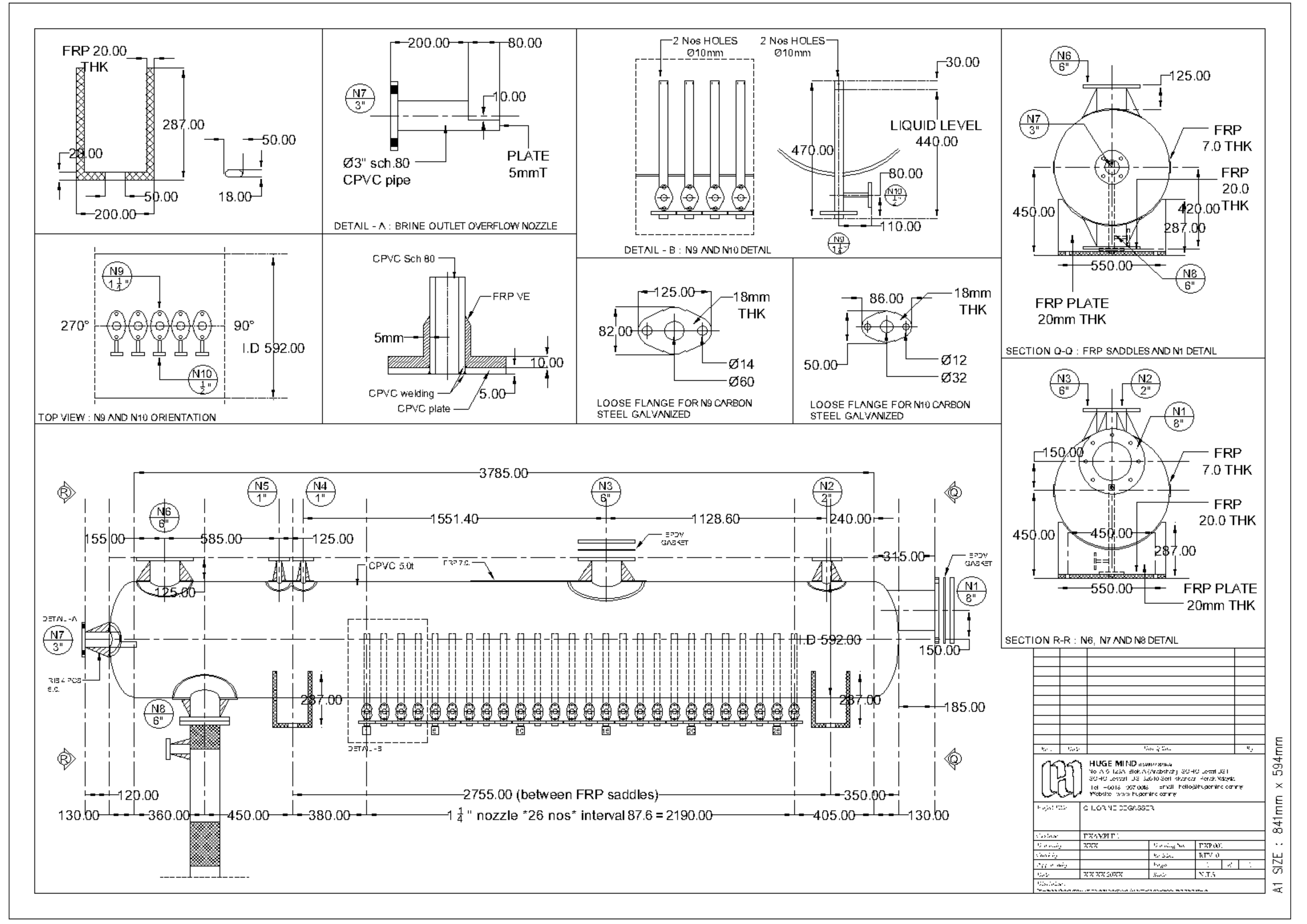
Technical drawing

Technical drawing is a detailed, precise diagram or plan that conveys information about how an object functions or is fabricated/constructed.